אביהוד בן-טובים
HOME
About us
אודות
שירותים SERVICES
Public
Private Homes
Residential
תב"ע TABA
Contact Us
אביהוד בן-טובים
HOME
About us
אודות
שירותים SERVICES
Public
Private Homes
Residential
תב"ע TABA
Contact Us
HOME
Residential
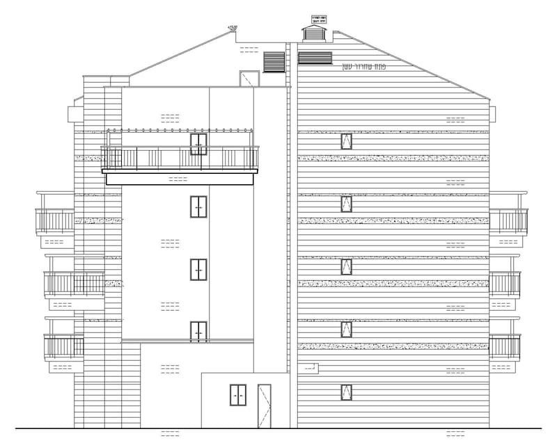
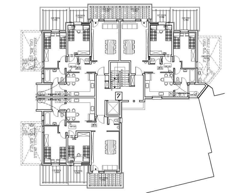
קרית הרמ"א
קרית הרמ"א
28 יח"ד - בית שמש
תכניות DRAWINGS
+972-0505712822
meldivandos@gmail.com
רחוב רות 1, אפרת