אביהוד בן-טובים
HOME
About us
אודות
שירותים SERVICES
Public
Private Homes
Residential
תב"ע TABA
Contact Us
אביהוד בן-טובים
HOME
About us
אודות
שירותים SERVICES
Public
Private Homes
Residential
תב"ע TABA
Contact Us
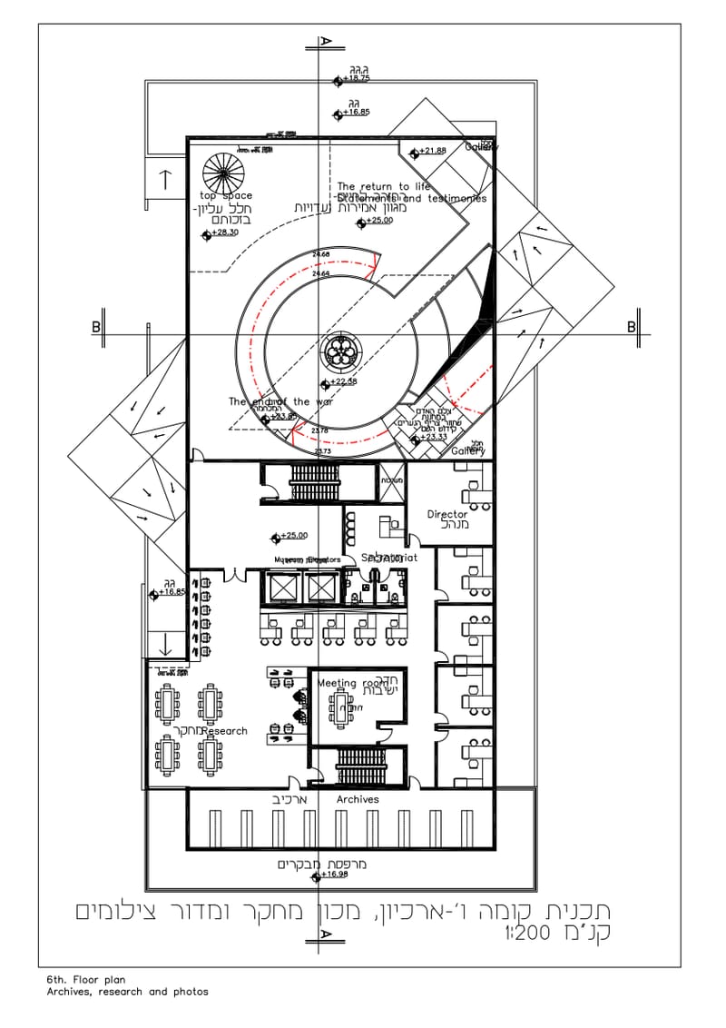
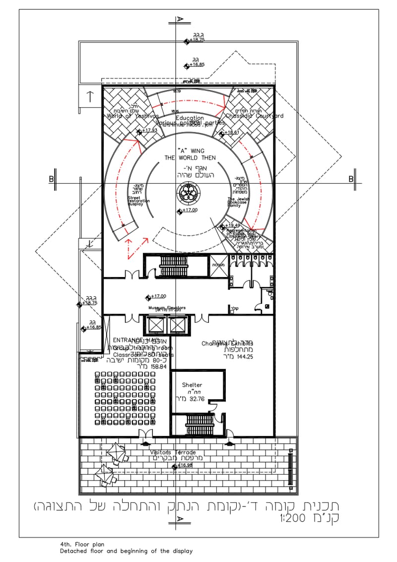
HOME
Public
גנזך-קידוש השם
גנזך-קידוש השם
בני-ברק
מכון לתיעוד מחקר והנצחה
תכניות DRAWINGS
+972-0505712822
meldivandos@gmail.com
רחוב רות 1, אפרת