אביהוד בן-טובים
HOME
About us
אודות
שירותים SERVICES
Public
Private Homes
Residential
תב"ע TABA
Contact Us
אביהוד בן-טובים
HOME
About us
אודות
שירותים SERVICES
Public
Private Homes
Residential
תב"ע TABA
Contact Us
HOME
Public
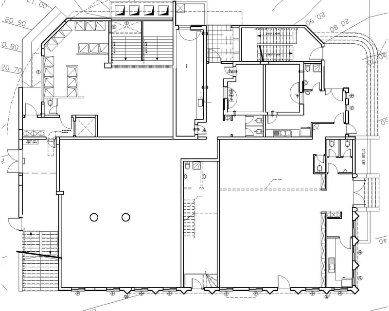
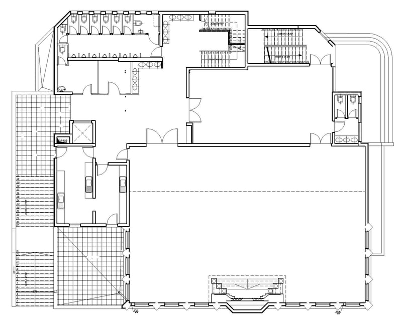
בית מדרש בעלזא
בית מדרש בעלזא
רובע ז' - אשדוד
תכניות DRAWINGS
+972-0505712822
meldivandos@gmail.com
רחוב רות 1, אפרת